ID CP2726547

O oportunitate rezidențială unică pe Calea Victoriei

ID CP2726547

950,000 € + 21% TVA

Apartament cu 4 camere de vânzare
Calea Victoriei, Bucuresti
105 mp
2025

Imaginați-vă un apartament situat în inima uneia dintre cele mai prestigioase zone ale Bucureștiului – Calea Victoriei, într-un ansamblu rezidențial exclusivist, complet nou, cu termen de finalizare în primul trimestru al lui 2027. Un proiect rar, conceput pentru cei care apreciază intimitatea, eleganța și finisajele de cea mai înaltă calitate.

Acest complex de elită se află la câțiva pași de repere emblematice precum Academia Română, Parcul Nicolae Iorga și Casa Vernescu, oferind un cadru de viață sofisticat, înconjurat de istorie și cultură.

Intrând în interior, apartamentele impresionează printr-o atenție excepțională la detalii: tâmplăria exterioară Slim Line 38 Reynaers aluminiu cu geam tripan aduce lumină naturală și izolație superioară, în timp ce încălzirea în pardoseală și sistemul de climatizare în tavan asigură confort termic perfect pe tot parcursul anului. Parchetul din lemn dublu-stratificat conferă căldură și eleganță, iar plăcile ceramice premium de la Mirage Ceramiche și Lea Ceramiche completează armonios spațiile sanitare și zona de living. Ușile elegante Filomuro definesc fiecare cameră prin liniile lor moderne, iar cada iconică Villeroy & Boch Oberon transformă baia într-un spațiu de relaxare exclusivist.

Fiecare detaliu tehnologic a fost gândit pentru un stil de viață modern: prize Schuko și un sistem smart home permit controlul iluminatului, obloanelor, încălzirii și răcirii, adaptând automat funcționarea în funcție de orar și condițiile meteo.

Zona de lobby, finisată cu piatră naturală, liftul modern și spațiile comune completează experiența exclusivistă, iar locurile de parcare și boxele disponibile la cerere aduc un plus de confort.

Aceasta nu este doar o proprietate, ci o oportunitate rară de a locui sau investi într-un ansamblu de referință, într-o zonă unde terenurile disponibile sunt aproape inexistente.

Unicitatea proiectului rezidențial de pe Calea Victoriei îl transformă într-o destinație exclusivistă pentru cei care caută un stil de viață sofisticat, siguranță, intimitate și o comunitate atent selecționată.

*locurile de parcare se pot achizitiona separat la pretul de 50.000 eur+tva/fiecare

**boxa se poate achizitiona separat la pretul de 20.000 eur+tva

***fotografiile sunt utilizate exclusiv cu titlu de sugestie pentru prezentare

Citește mai mult

  • Tip apartament
    Apartament
  • Compartimentare
    Decomandat
  • Număr camere
    4
  • Dormitoare
    3
  • Număr bucătării
    1
  • Număr băi
    2
  • Etaj
    2
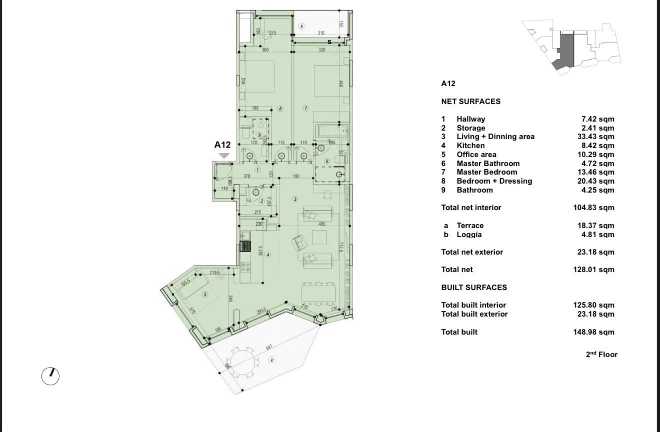
  • Suprafață utilă
    105 mp
  • Suprafață construită
    126 mp
  • Suprafață totală
    128 mp
  • Suprafață terasă
    18 mp
  • Disponibilitate
    Imediat
  • Confort
    Lux
  • Stare interior
    Ultrafinisat
  • Anul finisării
    2027
  • Număr balcoane
    1
  • Număr terase
    1
  • Număr locuri parcare
    2
  • Imobil
    Bloc de apart.
  • Stadiu construcție
    Proiect
  • An construcție
    2025
  • Construcție nouă
    Da
  • Tip construcție
    Beton
  • Număr etaje clădire
    5

Facilități

Aer condiționat
Apă
Boxă la subsol
Bucătărie deschisă
Canalizare
CATV
Curent
Ferestre aluminiu
Garaj subteran
Gaz
Geamuri tripan
Iluminat stradal
Încălzire prin pardoseală
Interfon
Internet
Izolație exterioară
Izolație interioară
Lift
Mijloace de transport în comun
Nemobilat
Parchet
Pază
Străzi asfaltate
Telefon
Ușă intrare metal
Vedere spre oraș
Ventiloconvectoare
Videointerfon
Sorin Raia - ANG Forbes Global Properties
Sorin Raia
Executive Director International Division

0733614614


Solicită chiar acum o vizionare
Telefon
Sună acum Solicită vizionare
Necesare:

Site-ul nu poate funcționa corect fără aceste cookie-uri. Vezi cookie-urile

Statistică:

Strângem statistici anonime despre voi, vizitatorii unici, pentru a vă îmbunătăți experiența dumneavoastră. Vezi cookie-urile

Marketing:

Pentru a ne promova mai eficient serviciile noastre, folosim cookies pentru a vă identifica și a vă oferi proprietăți și servicii personalizate. Vezi cookie-urile

Acest site folosește cookies, află detalii. Alege ce tipuri de cookies dorești să permitem: